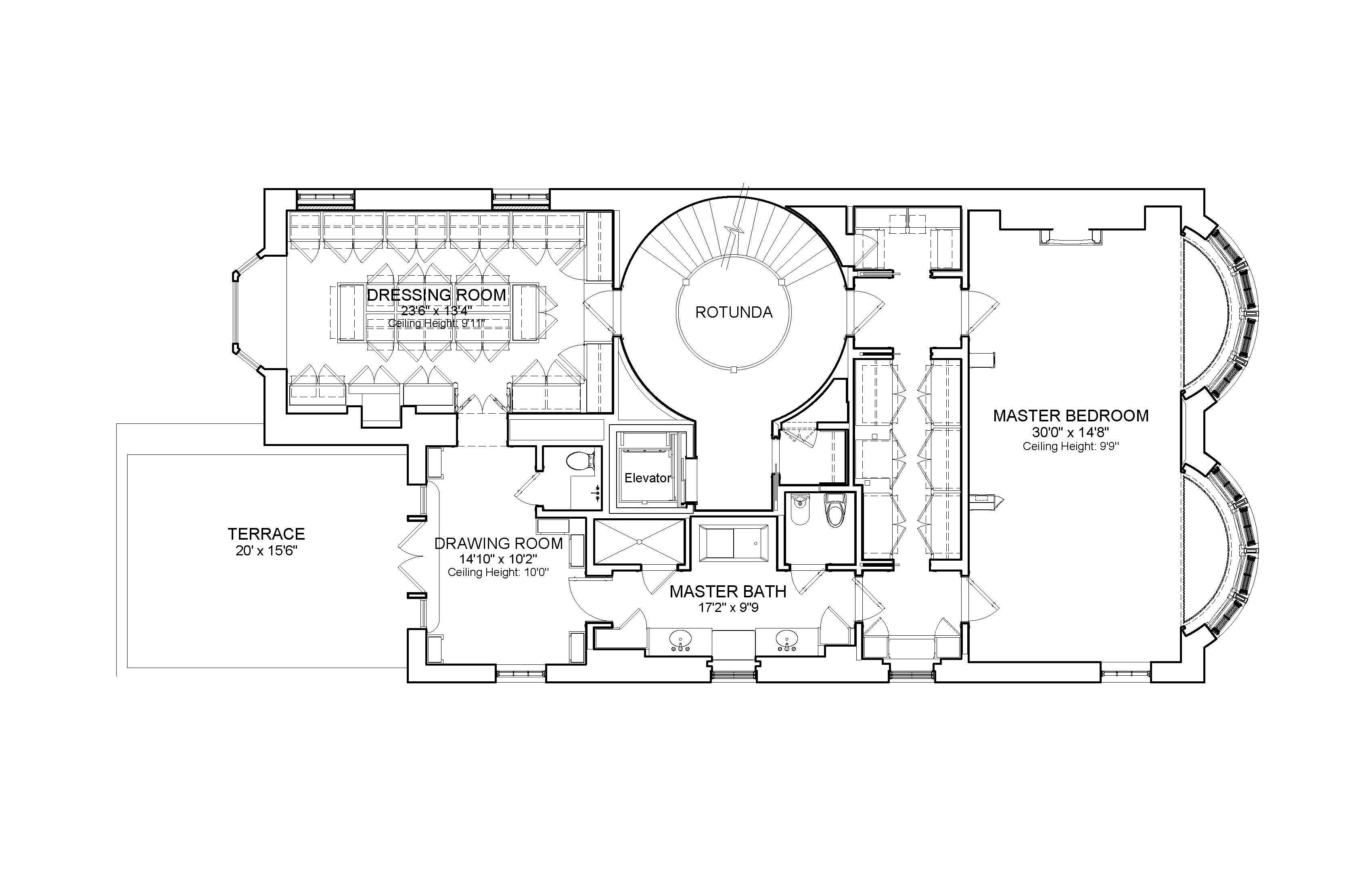
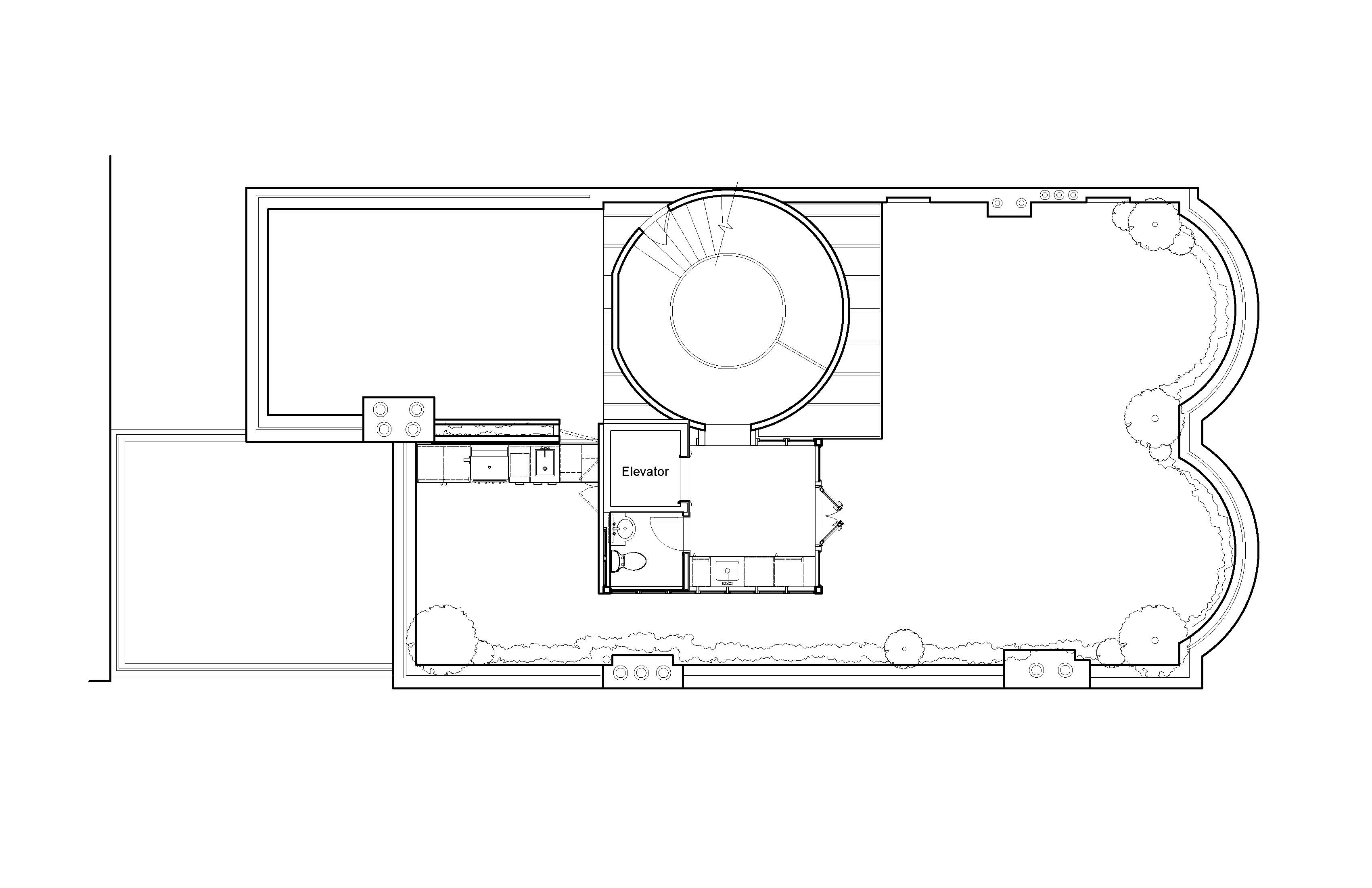
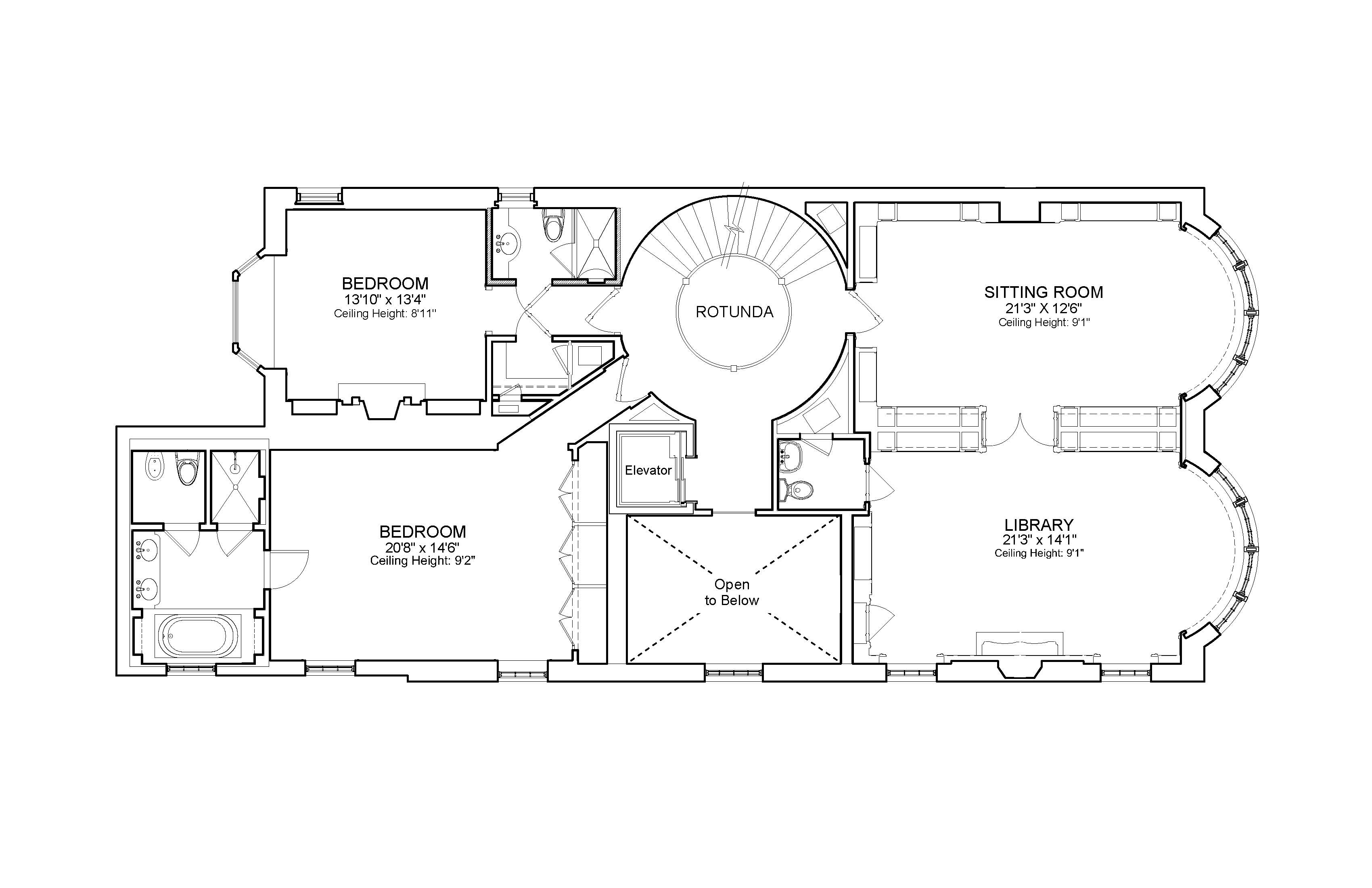
London in New York! Pass through the stately front doors and into the unparalleled grandeur that is 7 Sutton Square. This extraordinary residence stands in singular magnificence and represents a rare treasure in Manhattan - a 33 foot wide home that enjoys spectacular river views, a gated driveway, and a lush private garden. In mint condition, the mansion offers the ultimate in discretion and luxurious living. Designed by renowned interior designer Juan Pablo Molyneaux, only the highest quality of finishes and appointments were handpicked for the glorious interior that dwell beyond the refined, Georgian-style facade. The classic residential design features double-height entry foyer, filigreed spiraling staircase culminating in an exquisite glass rotunda, an elevator, a great room with parquet de Versailles wood floors, a formal dining room with terrace, a china room, and breakfast kitchen that connects to the commercial grade kitchen and staff facilities below. On the second floor is distinguished oak paneled double library with river views and wood burning fireplace, and two bedrooms both with baths en-suite. The master suite occupies the full third floor consisting of a double-width sleeping chamber with river and garden views plus a wood burning fireplace. En-suite, the elegant onyx master bathroom has a shower stall, tub, enclosed water closet and double sink. A study with terrace and an enormous dressing room follow. On the top floor is a bar with sink, powder room, and a roof terrace with breathtaking views. Below the main floor is a sauna, a gymnasium, and staff room with bath, The kitchen is a true chef's kitchen with salamander broiler, rotisserie, and a double commercial oven and stove. There are two walk-in refrigerator/freezers, a staff lounge, two powder rooms and laundry room. *Bottom left photo: current living room. Bottom right: virtual rendering of an alternate style living room.

Courtesy of The Corcoran Group
- Elevator
- Building type : Elevator
- Dining type : Formal
- Elevators total : 1
- General condition : Excellent
- Kitchen condition : Excellent
- Kitchen type : Eat-in
- Lot length : 75
- Lot width : 35
- Monthly tax amount : 15643.25
- Number of units total : 1
- Possible beds total : 5
- Stories total : 5
- Tax block : 1372
- Year built : 1899
RLS data display by Paul Griffith Real Estate
IDX information is provided exclusively for consumers’ personal, non-commercial use and that it may not be used for any purpose other than to identify prospective properties consumers may be interested in purchasing. This information is not verified for authenticity or accuracy and is not guaranteed and may not reflect all real estate activity in the market. ©2025 REBNY Listing Service, Inc.
All rights reserved.
